Properties
664 Rudgate RoadBloomfield Charter Township, MI 48304



Mortgage Calculator
Monthly Payment (Est.)
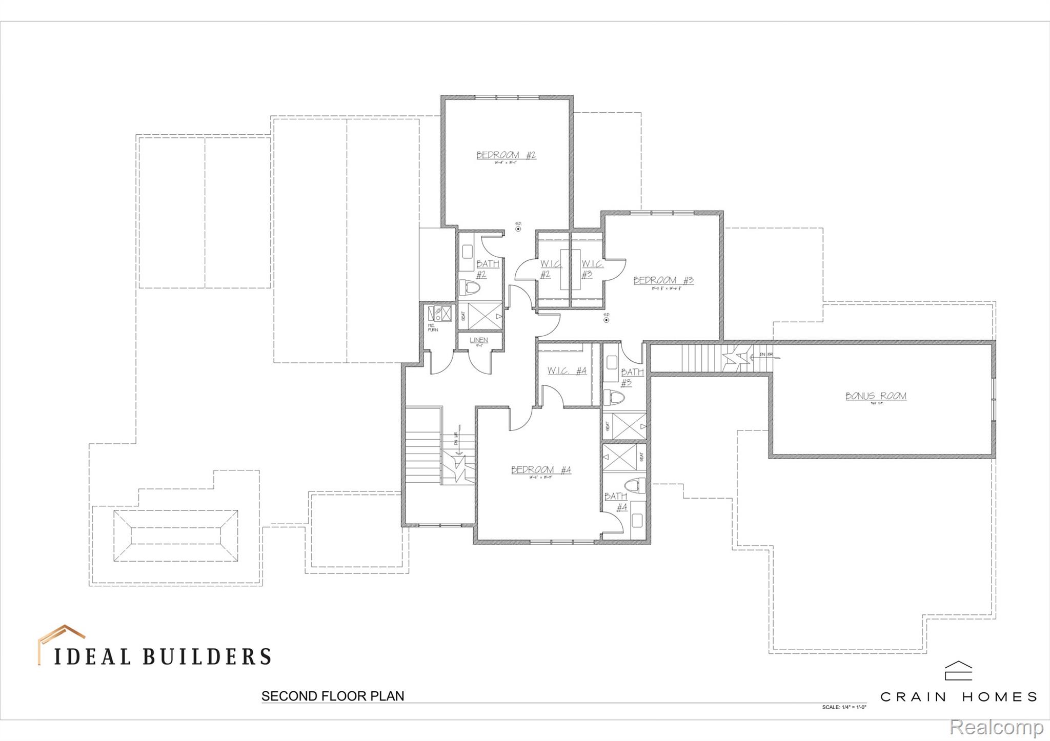
$16,881Set on nearly two breathtaking acres — positioned at the highest elevation point in one of Bloomfield Hills’ most coveted neighborhoods —this extraordinary home has been completely reimagined by Ideal Builders & Brian Neeper Architecture, offering the scale and craftsmanship of new construction within a timeless, estate setting. Expanded to 5,200 sf, the home is to be rebuilt from top to bottom with all new plumbing, electrical, and mechanical systems, delivering true turnkey peace of mind. A sweeping circular driveway introduces the residence, where 10' ceilings on the first floor, expansive Marvin windows, and thoughtfully designed sightlines create interiors that feel elevated and effortless. The chef's kitchen features custom cabinetry, Thermador appliances, and an adjacent scullery, blending beauty with everyday function. Living and entertaining spaces are gracious in scale, seamlessly connected to the outdoors and the picturesque grounds beyond. The 1st-floor primary suite offers a private retreat, while 3 additional bedrooms upstairs and a 5th bedroom in the lower level provide exceptional livability. In total, the home features 5 full baths and 2 powder rooms, thoughtfully designed with timeless finishes throughout. Above the 3-car garage, a 400 sf bonus space creates endless possibilities — ideal for a playroom or sophisticated lounge. Outdoors, rolling lawns, mature trees, and a sparkling pool create a storybook backdrop. The backyard extends deep into the property, offering remarkable flexibility to further customize the estate — whether envisioning a sport court or luxury landscape design. A rare opportunity to own nearly 2 acres, walking distance to Cranbrook, in a legacy Bloomfield Hills neighborhood — now delivered with the finish of brand-new construction. Plans/finishes are still fully customizable. *Home is also listed as-is under MLS# 20261009005. There are also options to remodel the existing home without adding a second floor.*
| 18 hours ago | Status changed to Active | |
| 18 hours ago | Listing updated with changes from the MLS® | |
| yesterday | Listing first seen on site |
IDX provided courtesy of Realcomp II Ltd. via RealcompIILtd. Copyright © 2026 Realcomp II Ltd. Shareholders.
IDX information is provided exclusively for consumers' personal, non-commercial use and may not be used for any purpose other than to identify prospective properties consumers may be interested in purchasing and that the data is deemed reliable but not guaranteed accurate by the MLS.

Did you know? You can invite friends and family to your search. They can join your search, rate and discuss listings with you.