Properties
Save
Ask
Tour
Hide
$479,990
8 Days On Site
28004 Kentfield AvenueFarmington Hills City, MI 48336
For Sale|Single Family Residence|Active
4
Beds
3
Total Baths
2
Full Baths
1
Partial Bath
2,939
SqFt
$163
/SqFt
2025
Built
Subdivision:
TUCK ESTATES
County:
Oakland
Call Now: (248) 788-6318
Is this the listing for you? We can help make it yours.
(248) 788-6318

Save
Ask
Tour
Hide
Mortgage Calculator
Monthly Payment (Est.)
$2,190Calculator powered by Showcase IDX, a Constellation1 Company. Copyright ©2025 Information is deemed reliable but not guaranteed.
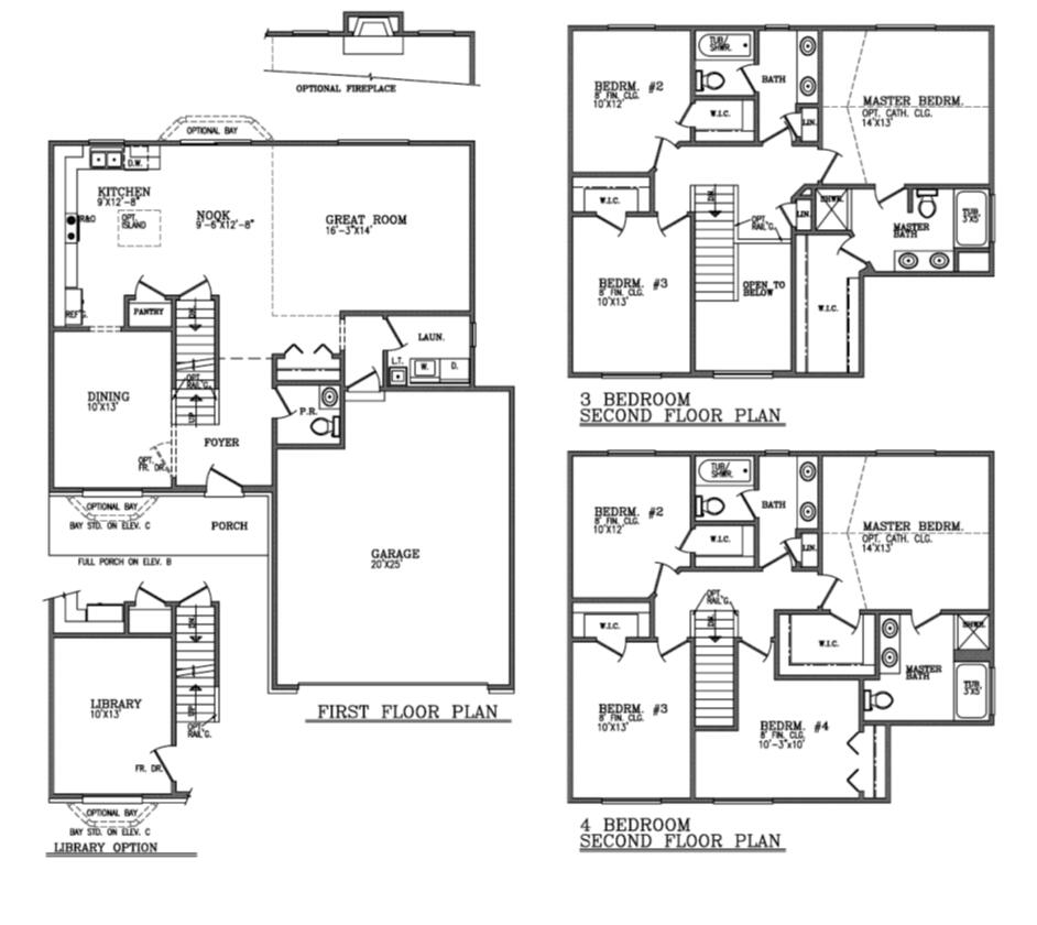
Welcome to Tuck Estates, a boutique community located in Farmington Hills, nestled within a private wooded & serene setting. New Construction, immediate occupancy builder's popular Colummbia 4 Bedroom 2.5 BA home with a rear view of a wooded area, premium elevation fireplace, LVP throughout the first floor; 42''Cotton Kitchen Cabinets; Kitchen Island, bay window in nook, vinyl plank flooring thrughout the first floor, plus many more upgrades! Tuck Estates aligns seamlessly with the natural wooded tree line, creating a sense of a home away from home feeling all while still less than 15 minutes away from all major expressways and shopping destinations!
Save
Ask
Tour
Hide
Listing Snapshot
Price
$479,990
Days On Site
8 Days
Bedrooms
4
Inside Area (SqFt)
2,939 sqft
Total Baths
3
Full Baths
2
Partial Baths
1
Lot Size
0.51 Acres
Year Built
2025
MLS® Number
81025051560
Status
Active
Property Tax
N/A
HOA/Condo/Coop Fees
N/A
Sq Ft Source
Plans
Friends & Family
Recent Activity
a week ago | Listing first seen on site | |
a week ago | Listing updated with changes from the MLS® |
General Features
Acres
0.51
Attached Garage
Yes
Cross Street
Tuck & Kimberly
Disclosures
Mineral Rights Excluded
Garage
Yes
Garage Spaces
2
Number Of Stories
2
Parking
AttachedConcreteGarage Faces Front
Property Condition
New Construction
Property Sub Type
Single Family Residence
Sewer
Public Sewer
SqFt Above
1980
Style
Colonial
Utilities
Natural Gas Connected
Water Source
Public
Interior Features
Appliances
Gas Water Heater
Basement
Full
Cooling
Ceiling Fan(s)
Fireplace
Yes
Fireplace Features
Family RoomGas Log
Fireplaces
1
Flooring
CarpetCeramic TileOther
Heating
Forced AirNatural Gas
Laundry Features
Gas Dryer HookupLaundry RoomMain LevelSinkWasher Hookup
Window Features
Bay Window(s)Screens
BathFull
Level - Upper
BathLav
Level - Main
Bedroom 2
Dimensions - 12 x 10Level - UpperArea - 120
Bedroom 3
Dimensions - 13.17 x 10Level - UpperArea - 132
Bedroom 4
Dimensions - 10 x 10Level - UpperArea - 100
Dining Room
Dimensions - 13.25 x 10Level - MainArea - 133
Great Room
Dimensions - 14 x 16.75Level - MainArea - 235
Kitchen
Dimensions - 12.67 x 9Level - MainArea - 114
Laundry
Dimensions - 6 x 10Level - MainArea - 60
Master Bathroom
Dimensions - 13 x 14Level - UpperArea - 182
Master Bedroom
Dimensions - 6.25 x 9Level - UpperArea - 56
Other
Dimensions - 14 x 9.5Level - MainArea - 133
Save
Ask
Tour
Hide
Exterior Features
Construction Details
BrickVinyl Siding
Lot Features
Wooded
Patio And Porch
CoveredPorch
Roof
Shingle
Waterfront
Yes
Waterfront Features
River FrontWaterfront
Windows/Doors
Bay Window(s)Screens
Community Features
Financing Terms Available
ConventionalFHAVA Loan
MLS Area
Area02231FarmingtonHills
Roads
Paved
School District
Clarenceville
Schools
School District
Clarenceville
Elementary School
Unknown
Middle School
Unknown
High School
Unknown
Listing courtesy of Infinity Homes - Michigan: lthomas@infinityhomescorp.com
IDX provided courtesy of Realcomp II Ltd. via GreaterMetropolitanAssociationofREALTORS. Copyright © 2025 Realcomp II Ltd. Shareholders.
IDX information is provided exclusively for consumers' personal, non-commercial use and may not be used for any purpose other than to identify prospective properties consumers may be interested in purchasing and that the data is deemed reliable but not guaranteed accurate by the MLS.

IDX provided courtesy of Realcomp II Ltd. via GreaterMetropolitanAssociationofREALTORS. Copyright © 2025 Realcomp II Ltd. Shareholders.
IDX information is provided exclusively for consumers' personal, non-commercial use and may not be used for any purpose other than to identify prospective properties consumers may be interested in purchasing and that the data is deemed reliable but not guaranteed accurate by the MLS.
Neighborhood & Commute
Source: Walkscore
Disclosure: Community information and market data powered by Constellation Data Labs. Information is deemed reliable but not guaranteed.
Save
Ask
Tour
Hide
Did you know? You can invite friends and family to your search. They can join your search, rate and discuss listings with you.